Alhaurín El Grande

For sale Detached Villa Costa Del Sol Alhaurín El Grande € 875.000,-

Ref.no: RSOR3787210
Price: € 875.000,-

1-7980e48d732b6fc85c14b43b94d2aa54.jpg

For sale Detached Villa Costa Del Sol Alhaurín El Grande € 875.000,-

Bedrooms9
Bathrooms10
Lot size3965m²
Living area1089m²
Poolyes
Gardenyes
Parkingyes
Built year2021
Setting: Close To Town, Close To Forest, Urbanisation
Orientation: North
Condition: New Construction
Pool: Private
Views: Mountain, Country, Urban, Street
Features: Near Transport, Private Terrace, Ensuite Bathroom
Furniture: Not Furnished
Kitchen: Not Fitted
Garden: Private
Security: Gated Complex
Parking: Open, Street, More Than One, Private
Utilities: Electricity, Drinkable Water
Category: Investment, Resale
Ref.no: RSOR3787210
Price: € 875.000,-

More information ›››
For sale Detached Villa Costa Del Sol Alhaurín El Grande € 875.000,-

¡GREAT INVESTMENT OPPORTUNITY! This private villa is about 70% completed and could also be used as a Boutique hotel or bed & breakfast. There are lots of possibilities with a build size of 1.089m². The layout is as follows:

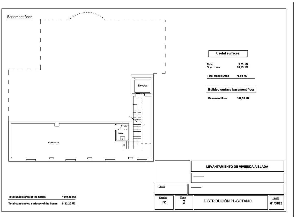
Basement (101m²): fitted with windows, wine cellar or gym, guest WC.

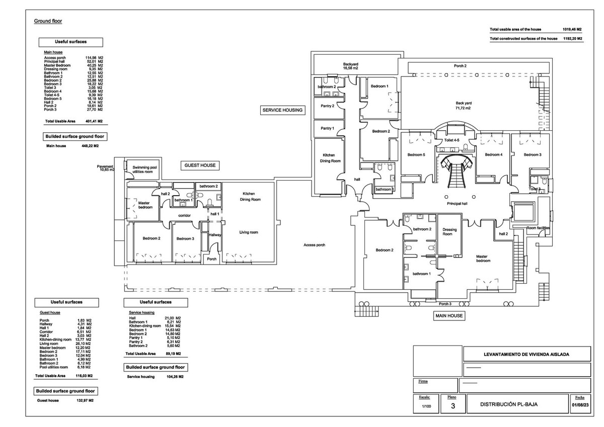
Ground floor (604m²): 4 bedrooms with ensuite bathrooms, Staff apartment with 2 bedrooms, 1 bathroom, utility room and a separate guest accommodation with 3 bedrooms, 3 bathrooms, kitchen, and living area.

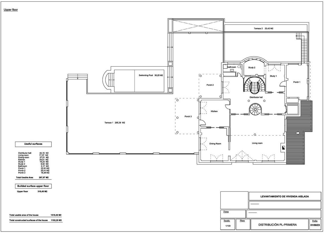
First Floor (279m²): Large living room with high ceiling and fireplace, dining room, kitchen and bathroom.

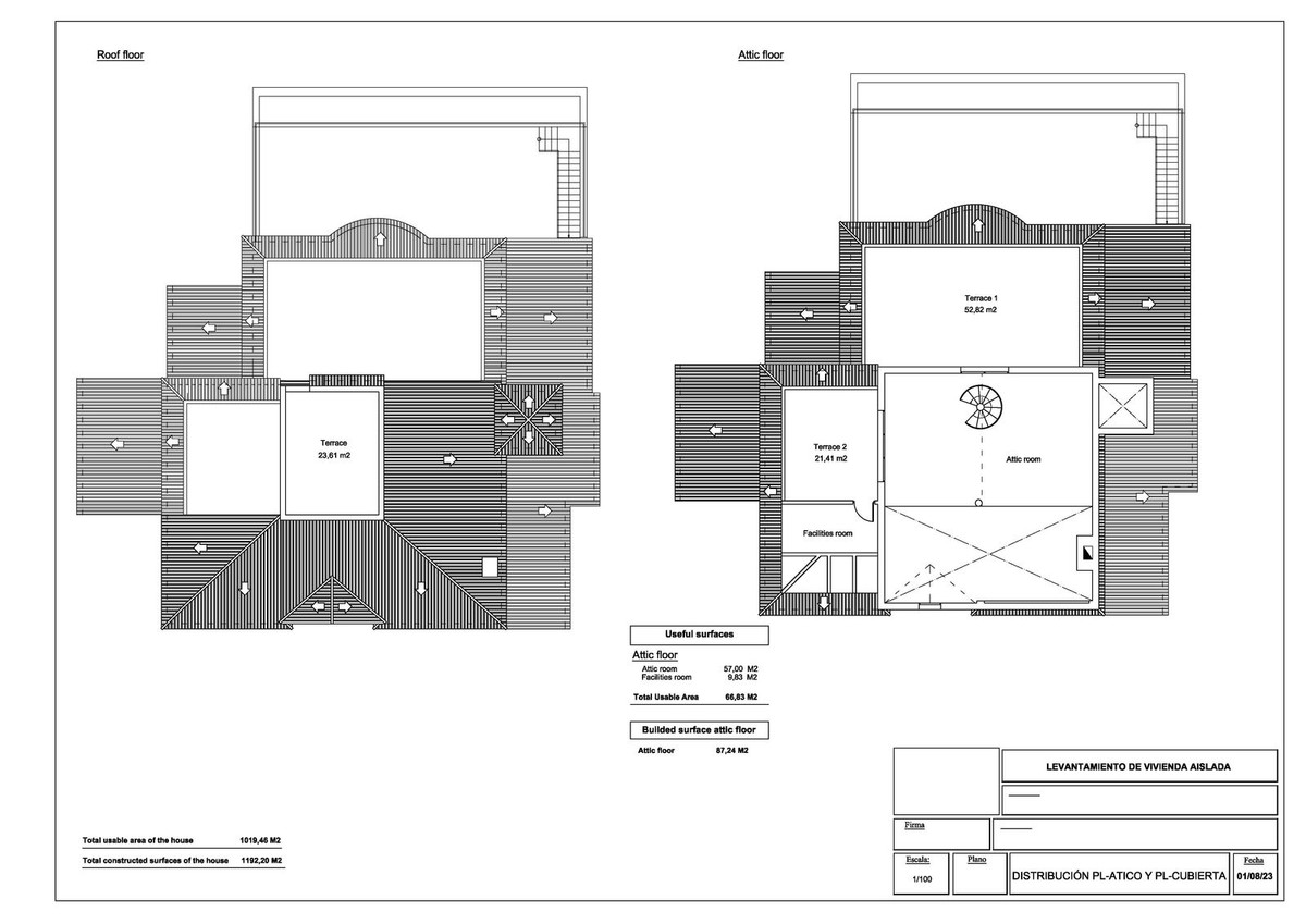
Top Floor (101m²): Gallery, with installation prepared for a lift (elevator).

Outside is a large terrace and private pool on a plot of almost 4,000m².

The property is located at the top of a private, exclusive gated urbanisation, only 5 minutes from the town, giving it a fantastic view of the Guadalhorce Valley and Sierra Nevada.

An evaluation was given in 2017 of 1.1 million Euros in its current condition, and 2.2 million Euros when finished.

Alternatives

1-7980e48d732b6fc85c14b43b94d2aa54.jpg

For sale Detached Villa Costa Del Sol Frigiliana € 950.000,-

Price € 950.000,-
More information
1-7980e48d732b6fc85c14b43b94d2aa54.jpg

For sale Detached Villa Costa Del Sol Cerros Del Aguila € 850.000,-

Price € 850.000,-
More information
1-7980e48d732b6fc85c14b43b94d2aa54.jpg

For sale Detached Villa Costa Del Sol Vélez-málaga € 890.000,-

Price € 890.000,-
More information
1-7980e48d732b6fc85c14b43b94d2aa54.jpg

For sale Detached Villa Costa Del Sol Mijas Costa € 899.000,-

Price € 899.000,-
More information
Disclaimer | Links