For sale Residential Plot Costa Del Sol Torremolinos € 4.662.960,-
Ref.no: RSOR4783879
Price: € 4.662.960,-
For sale Residential Plot Costa Del Sol Torremolinos € 4.662.960,-
| Bedrooms | |
| Bathrooms | |
| Lot size | 38858m² |
| Living area | m² |
| Pool | no |
| Garden | yes |
| Parking | no |
| Cooling | %lng_% |
| Storage | %lng_% |
| Elevator | %lng_% |
| Built year | 0 |
| Floor | |
| Setting: Close To Shops, Close To Town, Close To Schools | |
| Category: Investment |
Price: € 4.662.960,-
More information ›››
"Attention Investors!
Urban Land Investment Opportunity in the Sierra de Torremolinos
Strategic Location
This land is located in the Sierra de Torremolinos, adjacent to the El Pinar and Las Velas urbanizations. It is close to the highway, the Conference Center, and the upcoming largest shopping and entertainment center in Andalusia (INTU). Additionally, the land borders the future largest golf course in Málaga, which has already obtained final approval.
Land Characteristics
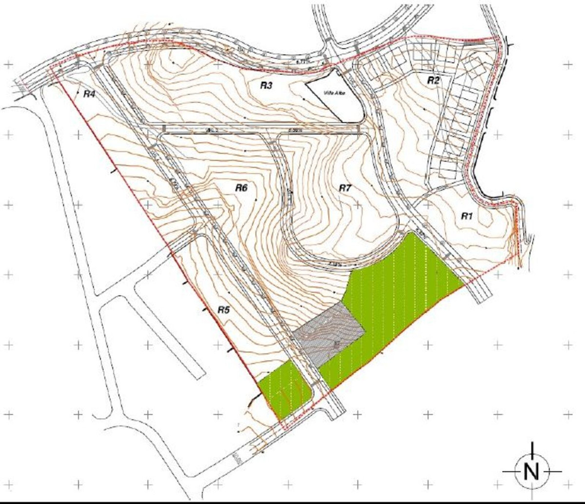
Total Area of the Partial Plan: 54,055 m².
Classification: Urban Residential compatible with other uses.
Type of Land: Programmed Developable Land (SUP) – SUP R. 2-4.
Gross Buildability: 0.20 m²/m².
Building Density: 15 homes per hectare.
Applicable Ordinance: UAS-2 – Minimum plot of 400 m².
Compensation System: Compensation.
Number of Buildable Homes in the Sector: 81 homes.
Altitude: The highest point of the land has an altitude of 97.94 meters above sea level, and the lowest point is at an altitude of 59 meters.
Additional Information Available
Planning Sheet: Approved by the Torremolinos City Council.
Bases and Statutes of the Compensation Board: Approved and published in the Official Gazette of the Province (BOP).
Sector Report and Description: Technical and specific details about the URO2 sector.
Highlighted Features
Panoramic Views: The land offers impressive views of the sea, the city of Málaga, and the Sierra.
Major Adjacent Projects: Adjacent to the future largest golf course in Málaga and approximately 1 km from the advanced project for the construction of the largest shopping and entertainment center in southern Spain. More information about this project can be found at the following link: INTU Shopping Center.
Purchase Options
Majority Partial Purchase:
Plots: Purchase of the majority owner's plot (22,540 m²) and Shelley's plot (16,318 m²), totaling 38,858 m².
Percentage: Represents 71.90% of the total sector.
Price: 120 € per square meter, totaling 4.662. 960 €, negotiable depending on the payment method.
Total Purchase:
Plots: Purchase of all plots except one with an existing house and another smaller than 400 m².
Price: 6.300. 000€, also negotiable.
Conclusion
This is an excellent opportunity for investors looking to acquire urban land in a developing area with great appreciation prospects. Don't miss this unique opportunity in the Sierra de Torremolinos.
If you want to receive a complete dossier with all the information, do not hesitate to contact us."
BE - Nederlands
DE - Deutsch
DA - Danske
EN - English
FI - Suomi
FR - Français
NL - Nederlands
NO - Norsk
RU - Русский
SV - Svenska