San Roque Club

For sale Townhouse Costa Del Sol San Roque Club € 799.000,-

Ref.no: RSOR4980715
Price: € 799.000,-

1-7980e48d732b6fc85c14b43b94d2aa54.jpg

For sale Townhouse Costa Del Sol San Roque Club € 799.000,-

Bedrooms3
Bathrooms2
Lot size188m²
Living area280m²
Poolyes
Gardenyes
Parkingyes
Built year2022
Setting: Frontline Golf, Close To Golf, Urbanisation
Orientation: West
Condition: Excellent
Pool: Communal
Climate Control: Air Conditioning
Views: Sea, Golf, Garden
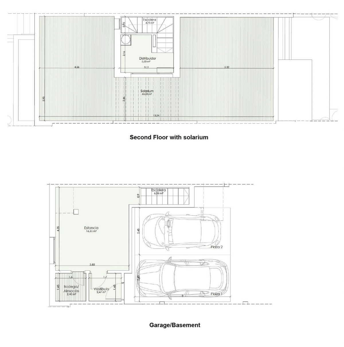
Features: Covered Terrace, Fitted Wardrobes, Private Terrace, Solarium, Gym, Storage Room, Utility Room, Ensuite Bathroom, Basement
Kitchen: Fully Fitted
Garden: Communal, Private
Security: Gated Complex, 24 Hour Security, Safe
Parking: Garage, More Than One
Category: Golf, Resale, Contemporary
Ref.no: RSOR4980715
Price: € 799.000,-

More information ›››
For sale Townhouse Costa Del Sol San Roque Club € 799.000,-

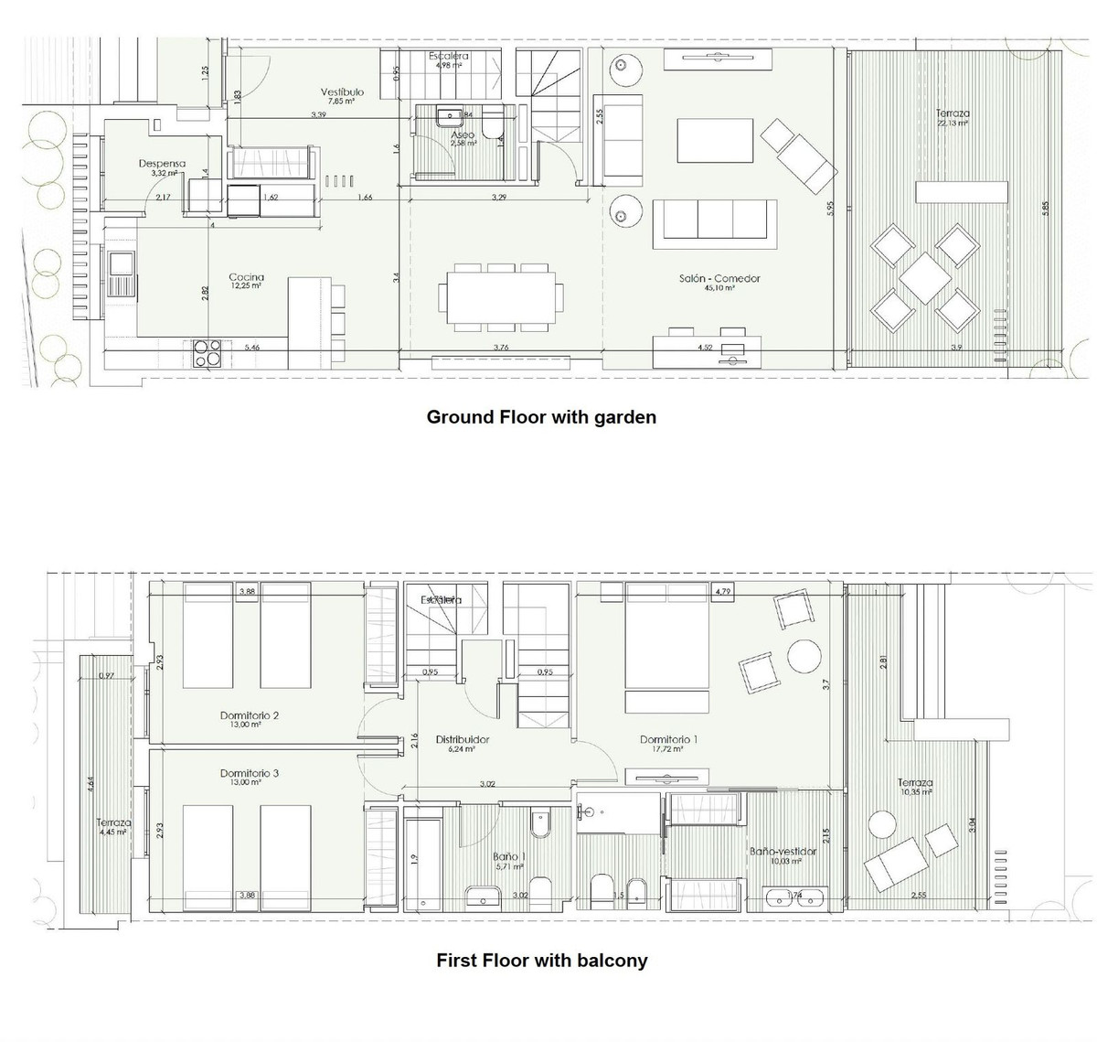
This exceptional townhouse, completed in 2022, offers contemporary living with stunning views of the prestigious San Roque Golf Club. With 180 m² of usable space, whether you're looking for a dream vacation home or a permanent residence, this property has it all. Featuring 3 spacious bedrooms, a stylish living and dining area, an open-concept kitchen, 2 bathrooms, a guest toilet, as well as storage space and 2 garage spaces, this home combines comfort and practicality.

The ground floor boasts a bright and airy living room that opens up to a large west-facing terrace and private garden, perfect for outdoor gatherings, with stunning views of the golf course. The sleek, modern kitchen is fully equipped with high-end appliances. Also on this level, you’ll find a convenient guest WC and a useful storage room. Upstairs, the master bedroom comes with an en-suite bathroom and a private glazed balcony overlooking the golf course. Two additional well-sized bedrooms share a bathroom with a bathtub, and have access to a balcony with views of the community pool.

The spacious rooftop terrace, offers panoramic views of the sparkling sea, the well-maintained golf course, and the community area. Large, modern windows with aluminum frames flood the home with natural light, while an energy-efficient heat pump system ensures comfort throughout the year.

Situated in a secure, gated community with 24-hour security, this property offers both luxury and peace of mind. The complex features a gym, sauna, and a communal pool, all surrounded by beautifully landscaped gardens and cork oak trees. Located in a peaceful setting, it’s just a short drive from Alcaidesa Beach and Sotogrande Marina.

This is a rare opportunity to live in one of the most sought-after locations in Spain. Don’t miss your chance to own this exceptional property!

Alternatives

1-7980e48d732b6fc85c14b43b94d2aa54.jpg

For sale Townhouse Costa Del Sol Los Arqueros € 750.000,-

Price € 750.000,-
More information
1-7980e48d732b6fc85c14b43b94d2aa54.jpg

For sale Townhouse Costa Del Sol La Cala De Mijas € 849.000,-

Price € 849.000,-
More information
1-7980e48d732b6fc85c14b43b94d2aa54.jpg

For sale Townhouse Costa Del Sol San Pedro De Alcántara € 790.000,-

Price € 790.000,-
More information
1-7980e48d732b6fc85c14b43b94d2aa54.jpg

For sale Townhouse Costa Del Sol Atalaya € 795.000,-

Price € 795.000,-
More information
Disclaimer | Links