Guaro

For sale Finca - Cortijo Costa Del Sol Guaro € 330.000,-

Ref.no: RSOR5224363
Price: € 330.000,-

1-7980e48d732b6fc85c14b43b94d2aa54.jpg

For sale Finca - Cortijo Costa Del Sol Guaro € 330.000,-

Bedrooms3
Bathrooms1
Lot size36500m²
Living area127m²
Poolyes
Gardenyes
Parkingyes
Built year1984
Setting: Country
Orientation: North
Condition: Fair, Renovation Required
Pool: Private
Climate Control: Fireplace
Views: Mountain, Country
Features: Covered Terrace, Private Terrace, Solarium, Storage Room
Furniture: Optional
Kitchen: Partially Fitted
Garden: Private
Parking: Open, More Than One, Private
Utilities: Electricity, Drinkable Water
Category: Resale
Ref.no: RSOR5224363
Price: € 330.000,-

More information ›››
For sale Finca - Cortijo Costa Del Sol Guaro € 330.000,-

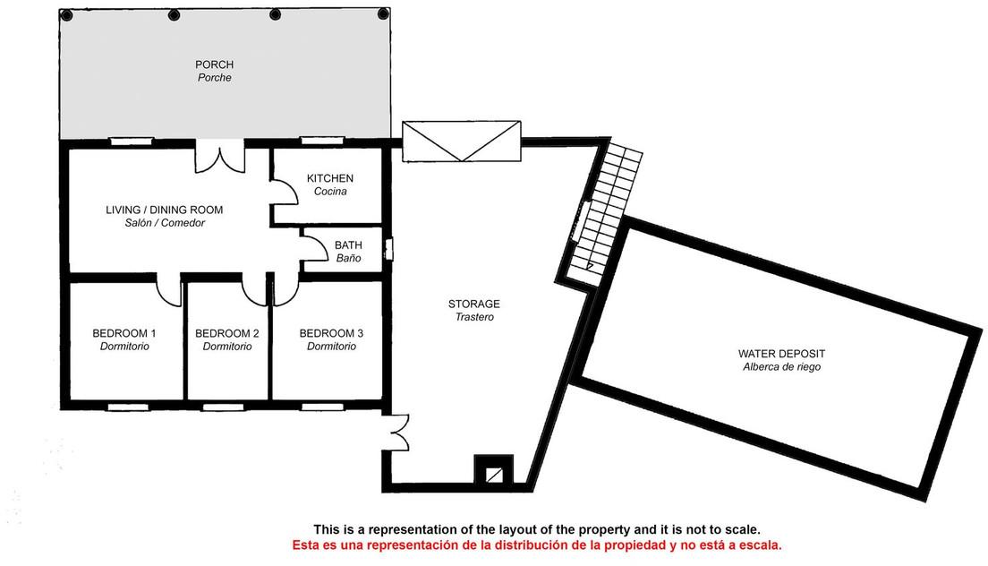
Beautiful finca for sale in Guaro, set on a partially fenced 36,500m² plot, ideal for enjoying the peace of the countryside and plenty of open space. The property features a house, a large storage room, porch, swimming pool, and water storage, as well as areas for cultivating almond and olive trees.

House:
The main house is a single storey with a roof terrace (accessible via exterior stairs). The ground floor includes:
• Living-dining room
• Kitchen
• Bathroom
• 2 bedrooms + a third room currently used as storage
• Storage room

Annexes and Outdoors:
• Large independent storage room, accessible from both inside and outside the house.
• Covered porch, perfect for enjoying the outdoors.
• 50m² Swimming pool and 24m² water storage.

Access:
• Dirt road with some bumps and loose stones, within the private path of the property

Utilities:
• Well water
• Town water

This finca combines comfort, privacy, and connection with nature, perfect as a summer residence, investment, or agricultural project.

Alternatives

1-7980e48d732b6fc85c14b43b94d2aa54.jpg

For sale Finca - Cortijo Costa Del Sol Estepona € 315.000,-

Price € 315.000,-
More information
1-7980e48d732b6fc85c14b43b94d2aa54.jpg

For sale Finca - Cortijo Costa Del Sol La Cala De Mijas € 375.000,-

Price € 375.000,-
More information
1-7980e48d732b6fc85c14b43b94d2aa54.jpg

For sale Finca - Cortijo Costa Del Sol Mijas Costa € 370.000,-

Price € 370.000,-
More information
1-7980e48d732b6fc85c14b43b94d2aa54.jpg

For sale Finca - Cortijo Costa Del Sol La Cala De Mijas € 370.000,-

Price € 370.000,-
More information
Disclaimer | Links