El Coto

For sale Villa Costa Del Sol El Coto € 700.000,-

Ref.no: INC962631
Price: € 700.000,-

AYZABP566_14233_V0_950E.jpg

For sale Villa Costa Del Sol El Coto € 700.000,-

Bedrooms5
Bathrooms3
Lot size880m²
Living area345m²
Poolyes
Gardenyes
Parkingyes
Coolingyes
Storageyes
Elevatorno
Air Conditioning Hot/Cold
Close to schools
Dining Room with Fireplace
Fitted Kitchen
For Sale
Garage
Living room with dining area
Pool
Storage room
Terrace
Ref.no: INC962631
Price: € 700.000,-

More information ›››
For sale Villa Costa Del Sol El Coto € 700.000,-

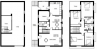
Villa for sale in El Coto, Mijas Costa. The first floor consists of 4 bedrooms, 2 bathrooms and a terrace. The ground floor consists a living room with dining area, a sitting room with a fireplace, a bedroom (which could be used as an office), a bathroom and a kitchen. There is a garage with internal access to the house and ample storage space. The garden features a barbecue area and a shower room. The 880m2 plot includes a 45m2 swimming pool, a workshop, and a woodshed.
The plot is zoned ADS2, meaning that the construction of semi-detached houses is permitted under the Mijas Town Hall's Partial Plan.

Alternatives

BOHACP1420_4722_V1_3324.jpg

For sale Semi-Detached Costa Del Sol Estepona € 730.000,-

Price € 730.000,-
More information
AWCACP1114_27758_V0_F22D.jpg

For sale Semi-Detached Costa Del Sol Costabella € 710.000,-

Price € 710.000,-
More information
BOMACP537_15440_V0_557D.jpg

For sale Finca Costa Del Sol Casares Alto € 775.000,-

Price € 775.000,-
More information
BOMACP709_20152_V0_4E7C.jpg

For sale Villa Costa Del Sol Forest Hills € 699.000,-

Price € 699.000,-
More information
Disclaimer | Links