Estepona

For sale Middle Floor Apartment Costa Del Sol Estepona € 298.500,-

Ref.no: RSOR5324593
Price: € 298.500,-

1-7980e48d732b6fc85c14b43b94d2aa54.jpg

For sale Middle Floor Apartment Costa Del Sol Estepona € 298.500,-

Bedrooms1
Bathrooms1
Living area70m²
Poolno
Gardenno
Parkingyes
Built year2006
Setting: Beachfront, Town, Beachside, Port, Close To Shops, Close To Sea, Marina, Front Line Beach Complex
Orientation: West
Condition: Good
Climate Control: Air Conditioning
Views: Urban, Street
Features: Covered Terrace, Lift, Fitted Wardrobes, Near Transport, Private Terrace, WiFi, Storage Room, Marble Flooring, Double Glazing, Near Church, Fiber Optic
Furniture: Optional
Kitchen: Fully Fitted
Security: Gated Complex, Alarm System
Parking: Underground, Garage, Covered, Private
Ref.no: RSOR5324593
Price: € 298.500,-

More information ›››
For sale Middle Floor Apartment Costa Del Sol Estepona € 298.500,-

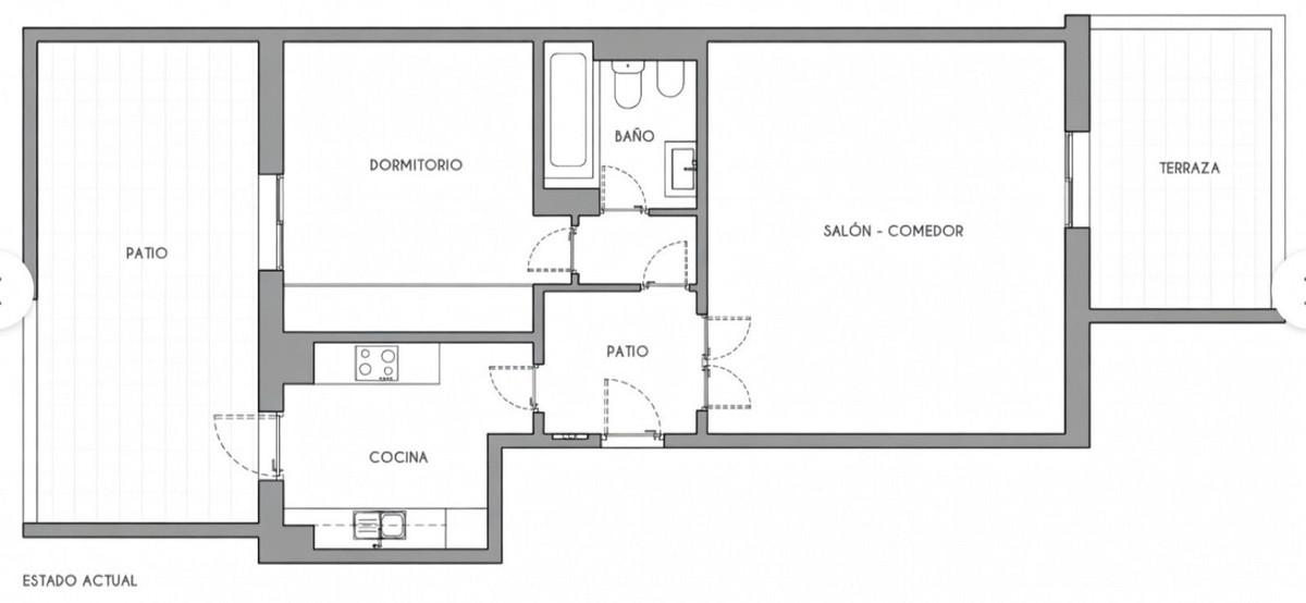
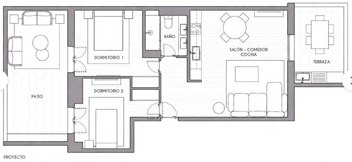
Beachfront 1-Bedroom Apartment with Reform Project to 2 Bedrooms Included – Avenida España, Puerto de Estepona
First line beach in the heart of Estepona – walk straight out onto the sand!
Exceptional opportunity on the iconic Avenida España promenade: a bright apartment with direct sea access and the added value of a full reform project to convert it into a 2-bedroom property included in the price (plans and modern renderings available).
Key Features

70 m² built
1 bedroom (easily convertible to 2) | 1 bathroom
Bright living-dining room with direct access to terrace
Independent kitchen + laundry area
Private terrace and patio
Fitted wardrobes
Air conditioning
1st floor exterior with lift

Included

Private underground parking space
Storage room (trastero)
Complete architectural project to transform into 2 bedrooms

Community & Location
Peaceful building in the centre of Estepona with everything on your doorstep: best restaurants, shops, supermarkets, health centre, schools and the vibrant promenade. Just steps from the beach, marina and all services.
The perfect combination of beachfront lifestyle and city convenience – ideal for both living and investment. Parking in the centre is a massive bonus.
Viewing highly recommended – contact us today to arrange a private viewing and see the reform project!

Alternatives

BOHAAP4876_26937_V1_80BD.jpg

For sale Apartment Costa Del Sol Mijas Costa € 308.800,-

Price € 308.800,-
More information
BOHADP13_176_V0_029E.jpg

For sale Apartment Costa Del Sol Calanova Golf € 279.000,-

Price € 279.000,-
More information
BOHACP1209_25866_V1_3631.jpg

For sale Apartment Costa Del Sol Arroyo De La Miel € 339.995,-

Price € 339.995,-
More information
BOHABP1062_2576_V1_5D07.jpg

For sale Apartment Costa Del Sol Casares € 325.000,-

Price € 325.000,-
More information
Disclaimer | Links